Logo Aurélien Trovato

Kadewe

Berlin

Budget: 150K€

Ouverture: Septembre 2021

Superficie: 18m2

Comptoir de la marque La Mer au Kadewe Berlin, vue de face
Vue 3D du projet de l'agence OMA pour la rénovation du grand magasin Kadewe Berlin
Adaptation du concept dessiné par Global, dans un des plus prestigieux grand magasin de Berlin rénové par l'agence OMA.

MON ROLE

En tant que Store Designer et sous le direction de la manager Visual Merchandising et Store Design, le projet a été entièrement conçu, en se concentrant sur les aspects suivants :

DESSIN DU PROJET

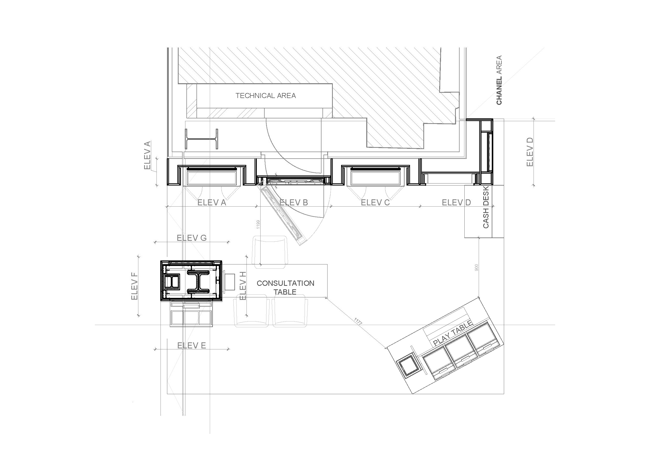
Malgré l’espace restreint, le design intègre astucieusement une caisse en périphérie et un accès discret au local technique, camouflé par un écran intégré. La table principale, orientée vers le flux de clients, bénéficie d’un éclairage conçu pour maximiser sa visibilité et offrir une présentation optimale de la gamme de soins.

SUIVI DE PROJET

Le projet a été soumis pour validation à la Vice-Présidente La Mer EMEA ainsi qu'à la Directrice Global Store Design. Par la suite, des plans détaillés, croquis et rendus 3D réalistes ont été réalisés pour garantir une mise en œuvre fluide et conforme aux standards.

VISUAL MERCHANDISING

Un VM Pack a été créé pour regrouper les recommandations merchandising et les visuels destinés au point de vente. Une niche dédiée a également été conçue pour la gamme Génaissance, renforçant son positionnement luxueux.

VALIDATION DES PLANS

Les plans techniques ont été examinés et approuvés avec rigueur pour assurer une fabrication conforme aux normes de qualité de la marque.

Rendu 3D du projet La Mer au Kadewe Berlin Vue en plan du stand La Mer au Kadewe Berlin Détail technique du mural pour le projet La Mer au Kadewe Berlin Photo du mural crème conçu pour La Mer au Kadewe Berlin
Photo du stand La Mer au Kadewe Berlin avec le full line tester, présentoire des produits de soin

IMPACT

Suite à la rénovation, les ventes ont connu une augmentation de 21 %, passant de 614K€ en FY21 à 780K€ en FY22, soulignant l'impact positif du nouvel agencement sur la performance commerciale.

Vue du stand La Mer au Kadewe Berlin avec mise en valeur de la nouveauté et la table consultation

REMERCIEMENTS

Laurence Zimmer Vice Presidente La Mer EMEA | Sandra Marrao Directrice Marketing La Mer EMEA | Mélanie Reymond Manager Store Design & Visual Merchandising La Mer EMEA | Sandra Lipovetsky Directrice Store Design La Mer Global | Sybille Dobs Project Manager La Mer Germany | Johannes & Zajonz production du projet.