Logo Aurélien Trovato

IFC

Shanghai

Budget: 2.2M€

Ouverture: Juillet 2013

Superficie: 120m2

Photo de la façade de la boutique Dior IFC Shanghai
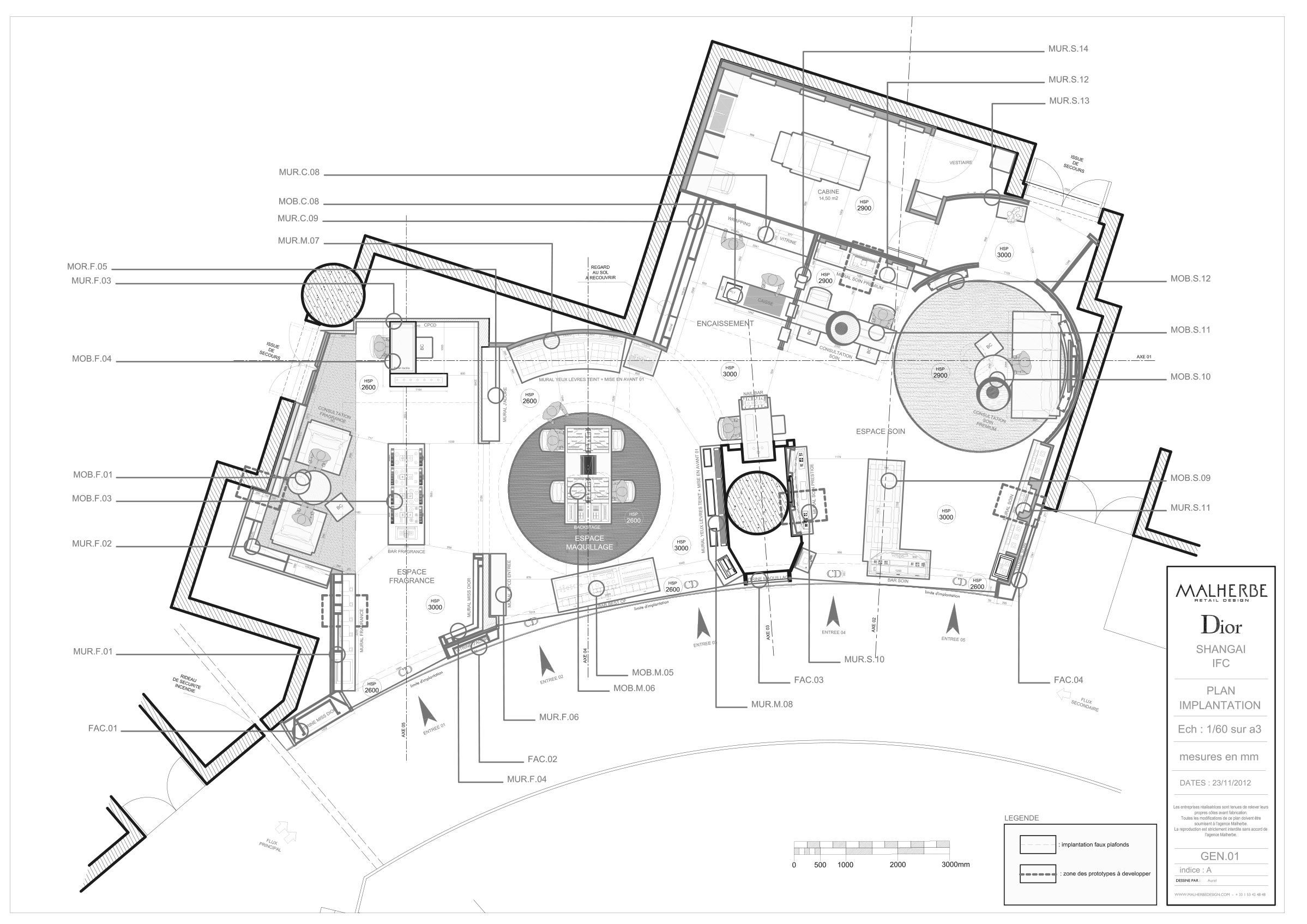
Plan d'implantation du flagship Dior à Shanghai
IFC Shanghai est la première boutique flagship conçu par l'agence Malherbe pour Dior, marquant une collaboration innovante et ambitieuse.

MON ROLE

En tant que dessinateur et responsable matériaux, j'ai contribué à la conception de ce projet en me concentrant sur les aspects suivants :

DESSIN DU PROJET:

Réalisation des plans détaillés pour chaque meuble et élément mural, en conformité avec les images 3D transmises par l'équipe design.

REALISATION DE PROTOYPES

Conception de plans spécifiques pour la création de prototypes, permettant de valider certains détails du mobilier avec les équipes internes de Dior. Supervision de la réalisation des prototypes, y compris des visites en atelier pour garantir la conformité et la qualité.

SUIVI ECLAIRAGE

Coordination de la gestion de l'éclairage en collaboration avec le prestataire attitré de Dior, afin d'assurer une mise en valeur optimale des espaces et des produits.

VALIDATION DES PLANS DE FABRICATION:

Analyse et approbation des plans techniques avant leur mise en production, avec une attention particulière au respect des normes de qualité et des exigences de conception.

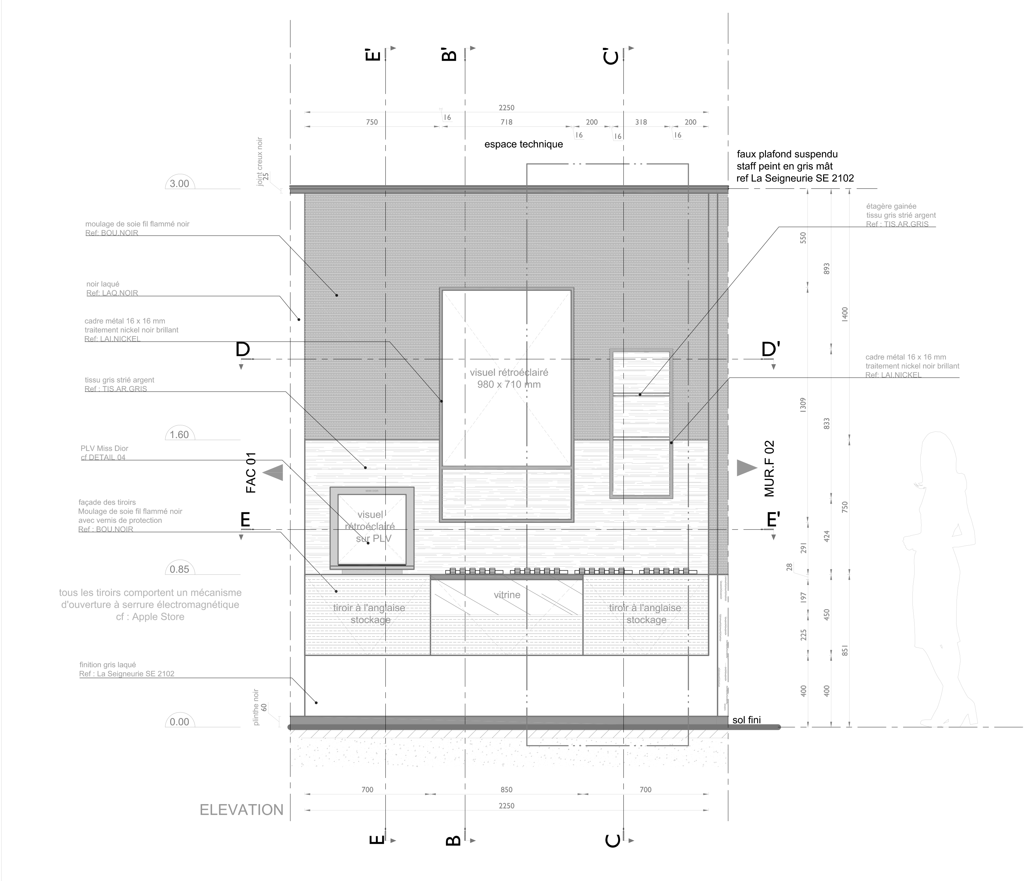
Visualisation 3D du projet Dior IFC Shanghai Dessin en elevation du mural de soin du flagship Dior IFC à Shanghai Prototype du mobilier pour le flagship Dior à Shanghai Photo de la zone soin dans le flagship Dior à Shanghai Dessin en elevation du mural fragrance du flagship Dior IFC à Shanghai Photo de la zone fragrance dans le flagship Dior à Shanghai
Sélection de matériaux pour le flagship Dior à Shanghai, incluant verre buriné et dorure à la feuille d'or

COLLABORATIONS ARTISANALES

Pour ce projet, j'ai eu l'opportunité de collaborer avec des artisans renommés, explorant des techniques telles que le verre buriné, la dorure à la feuille d'or, la marqueterie et le métal martelé. Ces savoir-faire ont apporté une signature unique et luxueuse à la boutique, renforçant son caractère exclusif.

IMPACT

Cette boutique a été un véritable succès, tant en termes de design que d'expérience client. Son concept novateur et son agencement ont servi de référence pour le déploiement de plusieurs autres boutiques dans la région, consolidant ainsi la présence de Dior en Asie et renforçant son image d'excellence et d'innovation.

Vue extérieure du flagship Dior à Shanghai, mise en valeur par un design moderne

REMERCIEMENTS

Un grand merci à Hubert de Malherbe et son équipe, ainsi qu'aux partenaires locaux comme Pure Creative et L'Observatoire International pour leurs contributions précieuses.